Breitwieser Roth Breitwieser Roth

Objekt: 11959

Chices Büro in bester Innenstadtlage

Nettokaltmiete / m2 40,00 €
Nebenkosten / m2 4,50 €
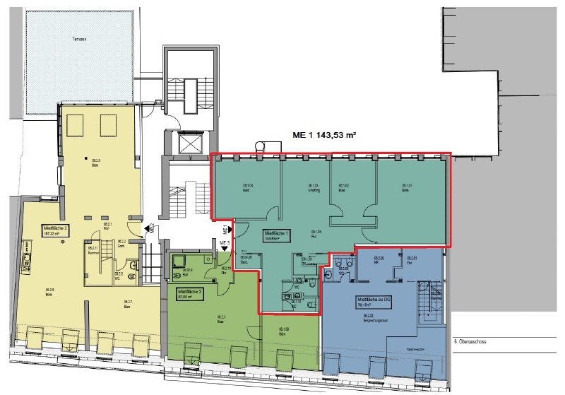
Fläche 144 m²
Teilbar ab 120 m²
80333 München Altstadt
Bezug ab Juli 2026, nach Absprache auch früher
Provision provisionsfrei für den Mieter

Beschreibung

Das klassische Geschäftshaus befindet sich in bester Münchner Innenstadtlage und ist mit allen Verkehrsmitteln sehr gut erreichbar. Über eine attraktive, zeitgemäße Passage erreicht man das moderne Treppenhaus mit gläsernem Aufzug. Die Büroeinheit mit Blick in den ruhigen Hinterhof wird im renovierten Zustand, inklusive erneuerter Klimaanlage, an den neuen Mieter übergeben. Das ideale Büro für Unternehmen, welche mit repräsentativer Adresse vertreten sein möchten. Ein neuer Mietvertrag kann für Juli 2026, nach Vereinbarung mit dem Mieter aber auch schon früher, abgeschlossen werden.

Lage

  • mitten in der Innenstadt, zwischen Oper, Marien- und Odeonsplatz
  • U-/S-Bahn Marienplatz oder U-Bahn Odeonsplatz
  • alle Geschäfte, Läden und Kaufhäuser befinden sich vor der Haustür
  • diese Lage bietet eine große Auswahl von verschiedensten Restaurants und Cafés

Ausstattung

  • Teppichboden, ein neuer Bodenbelag kann in Absprache verlegt werden
  • Deckenraster- sowie Stehleuchten
  • kleine Teeküche
  • Hohlraumboden mit Bodentanks für EDV-Verkabelung
  • moderner Personenlift
  • Raumhöhe von ca. 2,50 m
  • Klimatisierung

Sonstiges

  • Stellplätze können in den umliegenden öffentlichen Parkhäusern angemietet werden
  • E-Ladesäulen mit 22 kW in ca. 5 Gehminuten entfernt
  • Archivflächen auf Anfrage
  • Gewerbesteuerhebesatz: 490 %
  • ein Energieverbrauchsausweis (gültig bis 28. April 2029) liegt vor, der Verbrauchskennwert für Wärme beträgt 62 kWh/(m²*a) und für Strom 249 kWh/(m²*a), wesentlicher Energieträger für die Heizung des Gebäudes ist Fernwärme
Merkliste

Gerne senden wir Ihnen Exposés Ihrer Favoriten per Email zu.

Sie haben noch keine Favoriten gespeichert.

Vielen Dank
Wir werden uns so schnell
wie möglich mit Ihnen
in Verbindung setzen.
Objekt: 11959
Exposé anfordern

* Pflichtfelder bitte vor Absenden ausfüllen.