Breitwieser Roth Breitwieser Roth

Objekt: 4952

Büros mit Transparenz und Blick in begrünte Innenhöfe

Nettokaltmiete / m2 16,50 €
Nebenkosten / m2 3,50 €
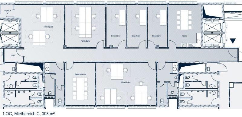
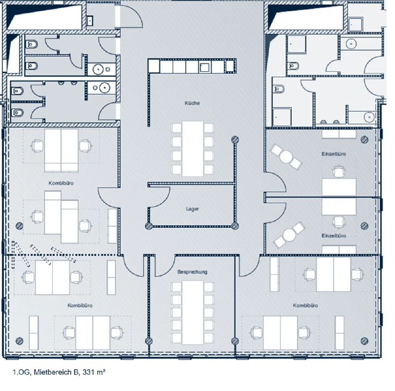
Fläche 729 m²
Teilbar ab 315 m²
85774 Unterföhring Umland Nord-Ost
Bezug ab sofort
Provision provisionsfrei für den Mieter

Beschreibung

Das attraktive Bürogebäude umgeben von großzügig angelegten Grünflächen bietet schicke Büros mit lichtdurchfluteten Räumen. Die Eingangsbereiche sind repräsentativ und modern gestaltet. Die Mietflächen können noch den Anforderungen des Mieters angepasst werden und sind flexibel gestaltbar. Hervorzuheben ist auch der niedrige Gewerbesteuerhebesatz von 330 % in Unterföhring.

Lage

  • zwischen Münchner Straße, Cosimastraße und Föhringer Ring
  • Tram-Haltestelle St. Emmeram in fußläufiger Nähe
  • Attraktives Umfeld mit vielfältigen Nahversorgungsangeboten (u.a. MediaMarkt, Hagebau, Aldi Süd, Edeka und Decathlon)
  • ein paar Möglichkeiten für die Mittagspause liegen ebenfalls in der Nähe

Ausstattung

  • Teppichboden
  • direkte und indirekte Beleuchtung
  • Hohlraumboden für die IT-Verkabelung
  • 2 Personenlifts in allen Foyers
  • schöne Raumhöhe von 3,00 m
  • außen liegender Sonnenschutz
  • Kühlung in Teilbereichen vorhanden (1.OG und 4.OG), im 2.OG nachrüstbar

Sonstiges

  • Außenstellplätze (à € 40,00 zzgl. gesetzl. MwSt.) und Tiefgaragenstellplätze (à € 80,00 zzgl. gesetzl. MwSt.) können angemietet werden
  • 4 öffentliche E-Ladestationen (11 kW Type 2) sind in 2 Gehminuten zu erreichen
  • Archivflächen im Keller (à € 6,40 /m² zzgl. gesetzl. MwSt.)
  • Gewerbesteuerhebesatz von 330 %
  • ein Energiebedarfsausweis (gültig bis 14.05.2030) liegt vor, der Endenergiebedarf für Wärme beträgt 107,5 kWh/(m²*a) und für Strom 20,4 kWh/(m²*a), wesentlicher Energieträger für die Heizung des Gebäudes ist Fernwärme
Merkliste

Gerne senden wir Ihnen Exposés Ihrer Favoriten per Email zu.

Sie haben noch keine Favoriten gespeichert.

Vielen Dank
Wir werden uns so schnell
wie möglich mit Ihnen
in Verbindung setzen.
Objekt: 4952
Exposé anfordern

* Pflichtfelder bitte vor Absenden ausfüllen.