Breitwieser Roth Breitwieser Roth

Objekt: 11747

Büro im hübschen Au-Haidhausen

Nettokaltmiete / m2 20,00 €
Nebenkosten / m2 4,50 €
Fläche 144 m²
Teilbar ab 144 m²
81541 München Au-Haidhausen
Bezug nach Vereinbarung
Provision provisionsfrei für den Mieter

Beschreibung

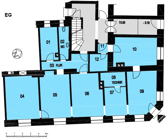
Das Wohn- und Geschäftshaus liegt ruhig in einer Seitenstraße und ist dennoch öffentlich gut angebunden. Das schöne Altbaubüro befindet sich im Erdgeschoss und kann sowohl vom normalen Haupteingang als auch durch einen separaten Eingang betreten werden. Die Einheit besteht aus drei abgetrennten Räumen und aus drei weiteren Durchgangsräumen.

Lage

  • zwischen Reger- und Welfenstraße
  • Tram-Station "Regerplatz" mit der Linie 25 in 1 Gehminute erreichbar
  • Geschäfte des täglichen Bedarfs sowie Cafés oder Restaurants in unmittelbarer Umgebung zu erreichen

Ausstattung

  • Parkettboden
  • Deckenspots
  • normale Raumhöhe
  • keine IT-Verkabelung
  • kleine Teeküche
  • Rollläden
  • separater Eingang

Sonstiges

  • Parklizenzbereich
  • 2 öffentliche E-Ladesäulen (150 kW CCS) sind in 7 Gehminuten zu erreichen
  • Gewerbesteuerhebesatz von 490 %
  • ein Energieverbrauchsausweis (gültig bis 18. September 2032) liegt vor, der Endenergieverbrauch beträgt 97,8 kWh/(m²*a), wesentlicher Energieträger für die Heizung des Gebäudes ist Erdgas
Merkliste

Gerne senden wir Ihnen Exposés Ihrer Favoriten per Email zu.

Sie haben noch keine Favoriten gespeichert.

Vielen Dank
Wir werden uns so schnell
wie möglich mit Ihnen
in Verbindung setzen.
Objekt: 11747
Exposé anfordern

* Pflichtfelder bitte vor Absenden ausfüllen.