Breitwieser Roth Breitwieser Roth

Objekt: 1919

Außen klassisch, Innen stylisch

Nettokaltmiete / m2 auf Anfrage €
Nebenkosten / m2 5 €
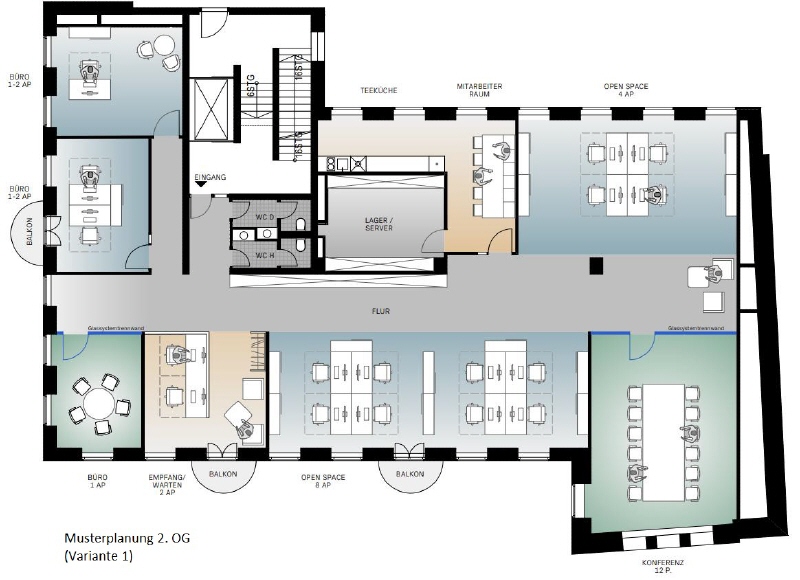
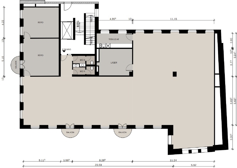
Fläche 448 m²
Teilbar ab 448 m²
81675 München Bogenhausen
Bezug ab 4. Quartal 2025
Provision provisionsfrei für den Mieter

Beschreibung

Dieser wunderschöne Altbau aus dem Jahr 1903 befindet sich in renommierter Lage in Bogenhausen. Das Gebäude zeichnet vor allem die reichhaltige Stuckfassade und das moderne Innere wie das repräsentative Foyer aus. Das Büro wurde als Showroom genutzt und kann nun komplett nach Mieterwunsch aufgeteilt und ausgestattet werden, so dass neue, attraktive Räume entstehen, die auf dem neusten Stand der Technik sind.

Lage

  • zwischen Friedensengel und Prinzregentenplatz
  • U-Bahn Prinzregentenplatz
  • ca. 2 Gehminuten bis zum Prinzregentenplatz mit ein paar Geschäften
  • einige, eher gehobene Restaurants befinden sich in der Nähe

Ausstattung

  • Parkettboden
  • Beleuchtung nach Absprache
  • moderne Teeküche
  • IT-Verkabelung mieterseits
  • Personenlift im Haus
  • schöne Altbauraumhöhe
  • Klimatisierung
  • außen liegender, elektrischer Sonnenschutz
  • mehrere kleine Balkone

Sonstiges

  • bis zu 7 Tiefgaragenstellplätze (à € 180,00 zzgl. gesetzl. MwSt.) können angemietet werden
  • E-Ladesäulen mit 22 kW befinden sich in 3 Gehminuten entfernt
  • es steht ein Kellerraum von ca. 29 m² zur Verfügung (€ 10,00/m² zzgl. gesetzl. MwSt.)
  • Gewerbesteuerhebesatz 490%
  • Pflichtangaben zum Energieausweis nach §16a EnEV entfallen wegen des Denkmal- bzw. Ensembleschutzes
Merkliste

Gerne senden wir Ihnen Exposés Ihrer Favoriten per Email zu.

Sie haben noch keine Favoriten gespeichert.

Vielen Dank
Wir werden uns so schnell
wie möglich mit Ihnen
in Verbindung setzen.
Objekt: 1919
Exposé anfordern

* Pflichtfelder bitte vor Absenden ausfüllen.