Breitwieser Roth Breitwieser Roth

Objekt: 11262

Aufsehen erregende Büros

Nettokaltmiete / m2 19,50 €
Nebenkosten / m2 3,20 €
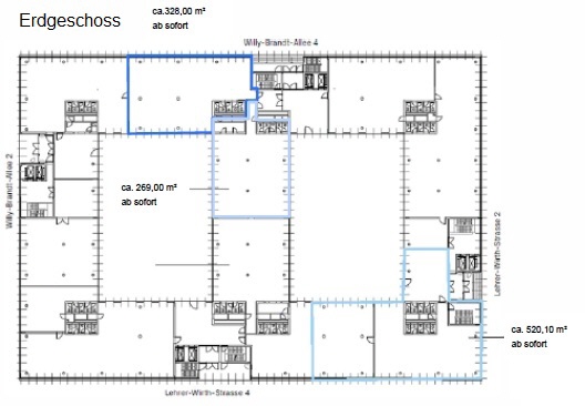
Fläche 328 m²
Teilbar ab 269 m²
81825 München Trudering / Riem
Bezug nach Vereinbarung
Provision provisionsfrei für den Mieter

Beschreibung

Vom ehemaligen internationalen Flughafen zum gefragten Messe- und Geschäftsstandort: Riem hat den Sprung mit moderner Architektur und einem gelungenen Branchenmix geschafft. Belebt wird der Standort durch ein großes Einkaufszentrum mit Plaza, einem Hotel und vielen Messebesuchern. Die attraktiven Büros erreicht man über individuell gestaltete Eingangsbereiche. Die Büros werden nach Mieterwunsch gestaltet und ausgebaut, von Großraumlösungen bis zu Einzelbüros ist hier alles möglich.

Lage

  • am neuen Standort Riem, an der A 94 und Wasserburger Landstraße
  • U-Bahn Messestadt West
  • ca. 2 Gehminuten bis zum Einkaufszentrum Riemarcaden mit zahlreichen Geschäften
  • Restaurants, Cafés und viele Snackbars befinden sich ebenfalls in den Riem Arcaden

Ausstattung

  • Bodenbelag nach Mietwunsch
  • arbeitsplatzgerechte Beleuchtung
  • Teeküche nach Absprache
  • Hohlraumböden für die IT-Verkabelung
  • Personenlift in jedem Eingangsbereich
  • schöne Raumhöhe
  • außen liegender Sonnenschutz

Sonstiges

  • Stellplätze können in der großen Tiefgarage angemietet werden (à € 100,00 bis € 116,80 zzgl. ges. MwSt.)
  • Elektro-Ladesäule für alle Kurz- und Dauerparker frei zugänglich
  • Lagerflächen (à € 10,00/m² zzgl. ges. MwSt.)
  • Gewerbesteuerhebesatz 490%
  • die dargestellten Impressionen zeigen Ausbaubeispiele aus dem Gebäude
  • ein Energiebedarfsausweis (gültig bis 11. Dezember 2029) liegt vor, der Endenergiebedarf für Wärme beträgt 85,6 kWh/(m²*a) und für Strom 48,8 kWh/(m²*a), wesentlicher Energieträger für die Heizung des Gebäudes ist Fernwärme
Merkliste

Gerne senden wir Ihnen Exposés Ihrer Favoriten per Email zu.

Sie haben noch keine Favoriten gespeichert.

Vielen Dank
Wir werden uns so schnell
wie möglich mit Ihnen
in Verbindung setzen.
Objekt: 11262
Exposé anfordern

* Pflichtfelder bitte vor Absenden ausfüllen.