Breitwieser Roth Breitwieser Roth

Objekt: 11955

Attraktives Bürohaus im Münchner Süden

Nettokaltmiete / m2 14,90 €
Nebenkosten / m2 3,57 €
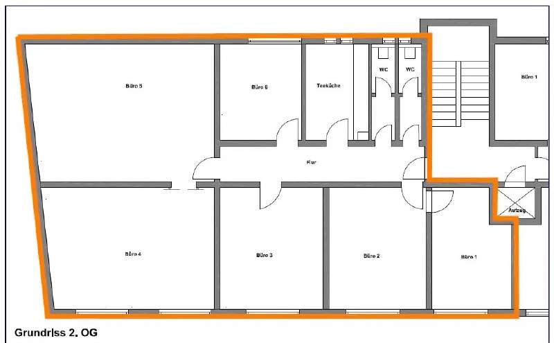
Fläche 203 m²
Teilbar ab 161 m²
81477 München Thalkirchen / Obersendling / Forstenried
Bezug nach Vereinbarung
Provision provisionsfrei für den Mieter

Beschreibung

Das gepflegte Büro- und Geschäftshaus liegt im Stadtteil Obersendling und befindet sich in einem gut erreichbaren, frequentierten Gewerbegebiet. Die helle Mietfläche mit angenehmer Arbeitsatmosphäre befindet sich im 2. Obergeschoss und verfügt über 6 Büroräume, 1 Teeküche, sowie ein Sanitärbereich mit 2 getrennten WCs.

Lage

  • zwischen Boschetsrieder Straße und Drygalski Allee
  • U-Bahn Forstenrieder Allee oder Machtlfingerstraße, Bushaltestelle vor der Tür
  • mehrere Einkaufsmärkte für den täglichen Bedarf sind fußläufig erreichbar
  • verschiedene Restaurants und Snackbars befinden sich in direkter Nähe

Ausstattung

  • Laminat
  • Deckenspots im Flur vorhanden
  • Kabelkanäle für die IT-Verkabelung
  • Personenlift
  • Raumhöhe von ca. 3,00 m
  • außen liegender Sonnenschutz

Sonstiges

  • 2 PKW-Stellplätze im Innenhof (im Mietpreis bereits inkludiert)
  • öffentliche E-Ladesäulen in der benachbarten Staffelseestraße nur wenige Gehminuten entfernt
  • Archivflächen (Preis auf Anfrage) vorhanden
  • Gewerbesteuerhebesatz von 490 %
  • die dargestellten Impressionen zeigen Ausbaubeispiele aus dem Gebäude
  • Energieausweis / Hinweis zur EnEV 2014: Zum Zeitpunkt der Erstellung und Veröffentlichung dieser Anzeige lag uns für die Immobilie kein Energieausweis vor, dessen Kennwerte nach § 16a der Energieeinsparverordnung ab dem 01.05.2014 in der Anzeige anzugeben wären. Hiervon unberührt bleibt die Verpflichtung des Vermieters / Verpächters bzw. Verkäufers der Immobilie, einen gültigen Energieausweis erstellen zu lassen und nach Maßgabe des § 16 Abs. 2 EnEV 2014 vorzulegen.
Merkliste

Gerne senden wir Ihnen Exposés Ihrer Favoriten per Email zu.

Sie haben noch keine Favoriten gespeichert.

Vielen Dank
Wir werden uns so schnell
wie möglich mit Ihnen
in Verbindung setzen.
Objekt: 11955
Exposé anfordern

* Pflichtfelder bitte vor Absenden ausfüllen.