Breitwieser Roth Breitwieser Roth

Objekt: 8891

Attraktives Büro am Hirschgarten

Nettokaltmiete / m2 21,00 €
Nebenkosten / m2 3,60 €
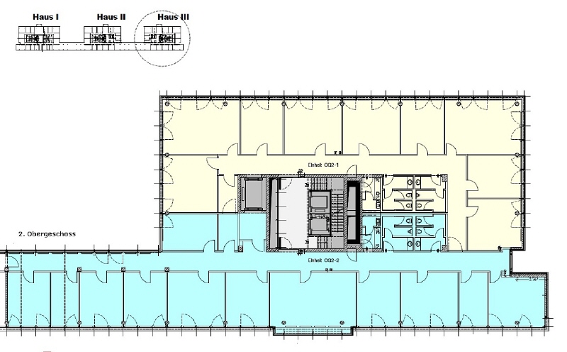
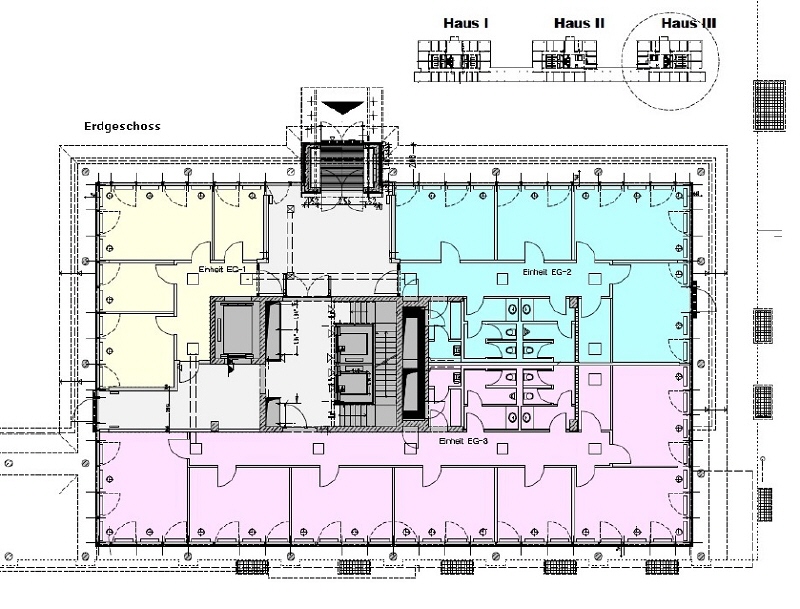
Fläche 2.137 m²
Teilbar ab 285 m²
80639 München Neuhausen / Nymphenburg
Bezug nach Vereinbarung
Provision provisionsfrei für den Mieter

Beschreibung

Das attraktive Geschäftshaus bestehend aus 3 Gebäudeteilen befindet sich in unmittelbarer Nähe zum Hirschgarten. Die einzelnen Häuser sind mit vollverglasten Brücken miteinander verbunden, wodurch sich kleine, begrünte Innenhöfe ergeben. Über einen repräsentativen Eingangsbereich mit dunklem Naturstein kommt man in das kompakte Büro. Große, fast raumhohe Glasfronten, zum Teil Glastüren, eine schöne Raumhöhe und moderne Technik geben diesem Büro ein repräsentatives Ambiente.

Lage

  • zwischen Donnersberger Brücke und Hirschgarten
  • S-Bahn Hirschgarten oder Tram-Station
  • ca. 5 Gehminuten bis zur Friedenheimer Brücke mit einigen Geschäften für den täglichen Bedarf wie z.B. ein Supermarkt, eine Apotheke oder eine Bäckerei
  • ein paar Restaurants und Cafés befinden sich im fußläufigen Umfeld

Ausstattung

  • grauer Teppichboden, neuer Bodenbelag nach Absprache
  • in die Decke integrierte, arbeitsplatzgerechte Beleuchtung
  • CAT7-Verkabelung in Bodenkanälen (muss eventuell auf Ihren Bedarf angepasst werden, gegen Ablöse)
  • Personen- und Lastenlift im Haus
  • schöne Raumhöhe von ca. 3,20 m
  • außen liegender, elekrischer Sonnenschutz
  • Kühlung optional

Sonstiges

  • Stellplätze in der Tiefgarage (à € 80,00 zzgl. gesetzl. MwSt.)
  • 5 öffentliche E-Ladesäulen direkt vor dem Gebäude
  • Archivflächen auf Anfrage
  • Gewerbesteuerhebesatz von 490 %
  • ein Energieverbrauchsausweis (gültig bis 10. Februar 2035) liegt vor, der Verbrauchskennwert für Wärme beträgt 99 kWh/(m²*a) und für Strom 42 kWh/(m²*a), wesentlicher Energieträger für die Heizung des Gebäudes ist Öl
Merkliste

Gerne senden wir Ihnen Exposés Ihrer Favoriten per Email zu.

Sie haben noch keine Favoriten gespeichert.

Vielen Dank
Wir werden uns so schnell
wie möglich mit Ihnen
in Verbindung setzen.
Objekt: 8891
Exposé anfordern

* Pflichtfelder bitte vor Absenden ausfüllen.