Breitwieser Roth Breitwieser Roth

Objekt: 11501

Attraktive Büros in präsenter Lage von Pasing

Nettokaltmiete / m2 ab 16,00 €
Nebenkosten / m2 3,60 €
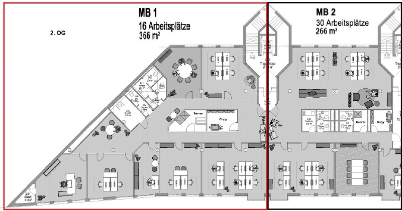
Fläche 366 m²
Teilbar ab 266 m²
81241 München Pasing / Obermenzing
Bezug nach Vereinbarung
Provision provisionsfrei für den Mieter

Beschreibung

Das sehr ansprechende Büro-/Praxis- und Wohngebäude aus dem Jahr 1988 wurde zuletzt 2024 umfassend modernisiert und die Fassade neu gestrichen. Die Büroflächen verfügen über einen effizienten Raumschnitt mit Team-, Einzel- wie auch Großraumbüros. Die hellen Mietflächen können den Wünschen und Vorstellungen des künftigen Mieters noch angepasst werden.

Lage

  • zwischen Am Knie und Planegger Straße
  • S-Bahn Pasing oder Bus vor der Tür
  • in wenigen Gehminuten erreicht man die beliebten Pasing Arcaden mit zahlreichen Einkaufsmöglichkeiten, im Gebäude selbst befindet sich ein Naturkost-Supermarkt
  • verschiedene Restaurants und Cafés sind ebenfalls in den Pasing Arcaden vorhanden

Ausstattung

  • Teppichboden
  • Deckenrasterleuchten
  • CAT5-Verkabelung über Fensterbankkabelkanäle (muss eventuell auf Ihren Bedarf angepasst werden)
  • Glasfaser im Haus vorhanden
  • Personenlift
  • normale Raumhöhe von 2,70 m
  • außen liegender, elektronischer Sonnenschutz
  • teilweise klimatisiert

Sonstiges

  • ausreichend Tiefgaragenstellplätze und 2 Stellplätze im Innenhof sind vorhanden (Preis auf Anfrage)
  • 2 öffentliche E-Ladesäulen (22 kW Type 2) sind in 4 Gehminuten zu erreichen
  • Gewerbesteuerhebesatz von 490 %
  • ein Energiebedarfsausweis liegt vor, der Endenergiebedarf für Wärme beträgt 125 kWh/(m²*a) und für Strom 23 kWh/(m²*a), wesentlicher Energieträger für die Heizung des Gebäudes ist Fernwärme
Merkliste

Gerne senden wir Ihnen Exposés Ihrer Favoriten per Email zu.

Sie haben noch keine Favoriten gespeichert.

Vielen Dank
Wir werden uns so schnell
wie möglich mit Ihnen
in Verbindung setzen.
Objekt: 11501
Exposé anfordern

* Pflichtfelder bitte vor Absenden ausfüllen.