Breitwieser Roth Breitwieser Roth

Objekt: 9680

Attraktive Büros in Obergiesing

Nettokaltmiete / m2 15,50 €
Nebenkosten / m2
Fläche 2.812 m²
Teilbar ab 2.812 m²
81539 München Obergiesing
Bezug nach Vereinbarung
Provision provisionsfrei für den Mieter

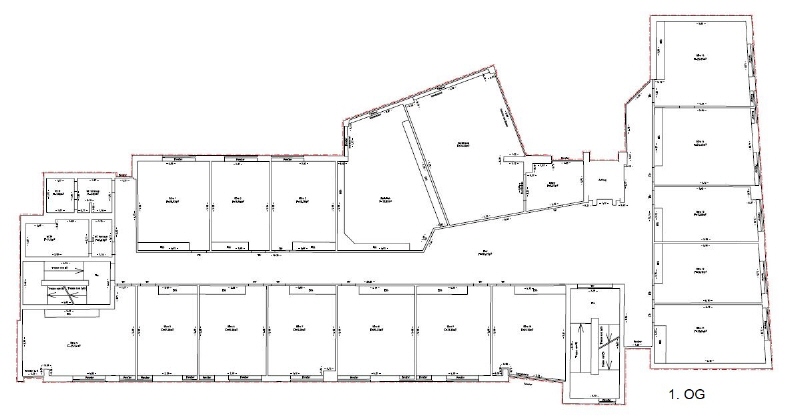
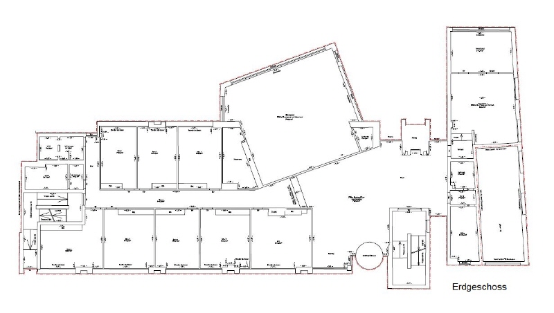
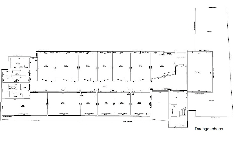
Beschreibung

Das in einer ruhigen Seitenstraße gelegene Geschäftshaus wurde 1991 erbaut. Nach dem Auszug eines Gesamtnutzers steht nun das Gebäude für eine neue Nutzung zur Verfügung. Es eignet sich sowohl wieder für einen Gesamtnutzer, kann aber auch etagenweise neu vermietet werden. Über einen großzügigen Eingangbereich betritt man das Geschäftshaus, das aktuell renoviert und verschönert wird. Im Dachgeschoss bietet eine große Terrasse einen grandiosen Ausblick, im Erdgeschoss befindet sich im rückwärtigen Teil ein schöner Garten mit Teich, den man sich mit dem Grundstücksnachbarn teilt. Die Büros können nach Mieterwunsch neu um- und ausgebaut werden.

Lage

  • zwischen Giesinger Bahnhof und Tegernseer Landstraße
  • U- und S-Bahn Giesing oder U-Bahn Untersbergstraße
  • einige Läden für den täglichen Bedarf befinden sich in den umliegenden Straßen
  • verschiedene Cafés, Restaurants, Bäcker, Metzgereien befinden sich in direkter Nähe

Ausstattung

  • Bodenbelag nach Mieterwunsch
  • arbeitsplatzgerechte Beleuchtung
  • IT-Verkabelung (muss eventuell auf Ihren Bedarf angepasst werden)
  • Personen- und Lastenlift (bis zu 1.000 kg) im Gebäude
  • Raumhöhe von ca. 2,70 m
  • außen liegender Sonnenschutz
  • Kühlsplitgeräte in den Besprechungsräumen
  • Dusche im UG

Sonstiges

  • insgesamt 26 Stellplätze in der Tiefgarage (à € 100,00 zzgl. gesetzl. MwSt.)
  • 2 öffentliche E-Ladesäulen (11 kW Type 2) sind in 7 Gehminuten zu erreichen
  • ingesamt 499 m² Archivflächen im UG (à € 7,50 /m² zzgl. gesetzl. MwSt.)
  • Gewerbesteuerhebesatz von 490 %
  • ein Energiebedarfsausweis (gültig bis 30. November 2027) liegt vor, der Endenergiebedarf für Wärme beträgt 164 kWh/(m²*a) und für Strom 16 kWh/(m²*a), wesentlicher Energieträger für die Heizung des Gebäudes ist Fernwärme
Merkliste

Gerne senden wir Ihnen Exposés Ihrer Favoriten per Email zu.

Sie haben noch keine Favoriten gespeichert.

Vielen Dank
Wir werden uns so schnell
wie möglich mit Ihnen
in Verbindung setzen.
Objekt: 9680
Exposé anfordern

* Pflichtfelder bitte vor Absenden ausfüllen.