Breitwieser Roth Breitwieser Roth

Objekt: 8092

Ateliergebäude … Am Rande des Werksviertels

Nettokaltmiete / m2 36,50 €
Nebenkosten / m2 3,50 €
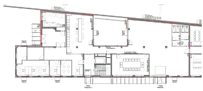
Fläche 545 m²
Teilbar ab 481 m²
81671 München Au-Haidhausen
Bezug nach Vereinbarung
Provision provisionsfrei für den Mieter

Beschreibung

Das Ateliergebäude liegt angrenzend zum Werksviertel in der Nähe des Ostbahnhofs. In dem länglichen Neubau befinden sich offen gestaltete, sehr gut ausgestattete Mietflächen auf höchstem Niveau. Die Flächen können nach den Wünschen des künftigen Mieters um- und ausgebaut werden.

Lage

  • zwischen Orleanstraße und Karl-Preis-Platz
  • U- und S-Bahn Ostbahnhof
  • ca. 7 Gehminuten bis zum Ostbahnhof und dessen Vorplatz mit diversen Einkaufsmöglichkeiten
  • Restaurants und Snacks für die Mittagspause befinden sich in der Nähe

Ausstattung

  • Kombination aus Teppichboden und Stäbchenparkett
  • Pendelleuchten
  • Teeküche nach Vereinbarung
  • IT-Verkabelung in Hohlraumboden (muss eventuell auf Ihren Bedarf angepasst werden)
  • Personenlift im Haus
  • schöne Raumhöhe von ca. 2,70 m
  • elektrischer, außen liegender Sonnenschutz
  • innen liegender Blendschutz
  • Betonkernaktivierung

Sonstiges

  • Stellplätze in der Tiefgarage (à € 150,00 zzgl. gesetzl. MwSt.), Fahrradstellplätze im Gebäude
  • E-Ladesäulen mit 38 kW 3 Geminuten entfernt
  • Archivflächen auf Anfrage
  • Gewerbesteuerhebesatz: 490%
  • die dargestellten Impressionen zeigen Ausbaubeispiele aus dem Gebäude
  • LEED Gold sowie WiredScore Platinum angestrebt
  • ein Energiebedarfsausweis liegt vor, der Endenergiebedarf für Wärme beträgt 109 kWh/(m²*a) und für Strom 0 kWh/(m²*a), wesentlicher Energieträger für die Heizung des Gebäudes ist Fernwärme
Merkliste

Gerne senden wir Ihnen Exposés Ihrer Favoriten per Email zu.

Sie haben noch keine Favoriten gespeichert.

Vielen Dank
Wir werden uns so schnell
wie möglich mit Ihnen
in Verbindung setzen.
Objekt: 8092
Exposé anfordern

* Pflichtfelder bitte vor Absenden ausfüllen.