Breitwieser Roth Breitwieser Roth

Objekt: 12109

Anspruchsvolle Büros in pulsierender City-Lage

Nettokaltmiete / m2 42,00 €
Nebenkosten / m2 4,50 €
Fläche 450 m²
Teilbar ab 450 m²
80335 München Ludwigsvorstadt-Isarvorstadt
Bezug nach Vereinbarung
Provision provisionsfrei für den Mieter

Beschreibung

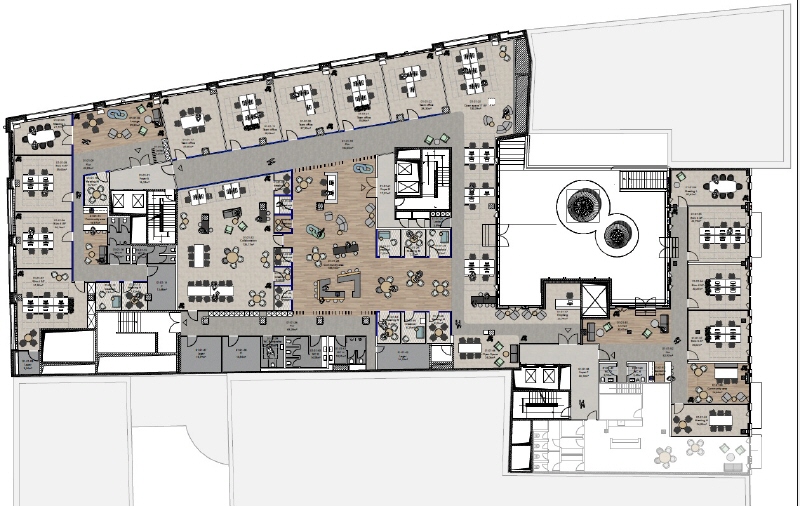
Das in 2020/2021 komplett sanierte Büro- und Geschäftshaus mit klarer Fassadenstruktur befindet sich in Sichtweite zum Münchner Hauptbahnhof. Das stilvolle Architekturkonzept und das moderne, anspruchsvolle Innendesign schaffen eine angenehme Arbeitsatmosphäre mit bester Work-Life-Balance. Die Raumaufteilung und Gestaltung wird mit dem Mieter abgestimmt. Ein begrünter Innnenhof mit Sitzmöglichkeit im 2. OG steht allen Büromietern zur Verfügung. Das Branding des Unternehmensnamen an der Fassade ist möglich.

Lage

  • zwischen Karlsplatz und Hauptbahnhof
  • U-/ S-Bahn und Tram-Station Hauptbahnhof
  • ca. 5 Gehminuten bis zur Fußgängerzone mit allen Geschäften, verschiedene Einkaufsmöglichkeiten direkt vor der Tür
  • ein große Zahl an Restaurants, Cafés und Snackbars befindet sich in der direkten Umgebung

Ausstattung

  • hochwertiger Teppichboden
  • verglaste Systemtrennwände
  • moderne Deckenbeleuchtung
  • Teeküche nach Absprache
  • Hohraumboden mit Bodentanks für mieterseitige EDV-Verkabelung
  • Personen- und Lastenlift
  • lichte Raumhöhe von 3,10 m
  • elektrische Sonnenschutz-Screens
  • vorkonditionierte Lüftung mit Heiz-/ Kühlsegeln
  • innovatives Schallschutzkonzept

Sonstiges

  • Stellplätze in der Tiefgarage (à € 140,00 zzgl. gesetzl. MwSt.), teilweise mit Elektroladestation, sowie Fahrradabstellplätze im Untergeschoss
  • Kellerräume im Untergeschoss verfügbar (Mietpreis auf Anfrage)
  • Duschräume und Umkleidekabinen im Untergeschoss
  • Gewerbesteuerhebsatz von 490 %
  • LEED-Gold Zertifizierung
  • Quelle der Fotos: @ Deka Immobilien
  • Energieausweis / Hinweis zur EnEV 2014: Zum Zeitpunkt der Erstellung und Veröffentlichung dieser Anzeige lag uns für die Immobilie kein Energieausweis vor, dessen Kennwerte nach § 16a der Energieeinsparverordnung ab dem 01. Mai 2014 in der Anzeige anzugeben wären. Hiervon unberührt bleibt die Verpflichtung des Vermieters / Verpächters bzw. Verkäufers der Immobilie, einen gültigen Energieausweis erstellen zu lassen und nach Maßgabe des § 16 Abs. 2 EnEV 2014 vorzulegen.
Merkliste

Gerne senden wir Ihnen Exposés Ihrer Favoriten per Email zu.

Sie haben noch keine Favoriten gespeichert.

Vielen Dank
Wir werden uns so schnell
wie möglich mit Ihnen
in Verbindung setzen.
Objekt: 12109
Exposé anfordern

* Pflichtfelder bitte vor Absenden ausfüllen.