Breitwieser Roth Breitwieser Roth

Objekt: 11475

Alleinauftrag… Jugendstiljuwel mit Isarblick

Nettokaltmiete / m2 24,50 €
Nebenkosten / m2 4 €
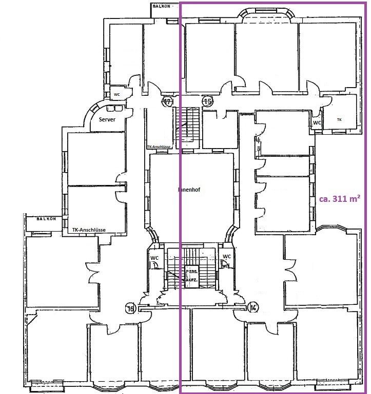
Fläche 311 m²
Teilbar ab 311 m²
80538 München Lehel
Bezug nach Vereinbarung
Provision provisionsfrei für den Mieter

Beschreibung

Die Büroeinheit befindet sich in einem charaktervollen Jugendstilhaus von 1914, dessen historische Elemente bis heute erhalten sind und dem Objekt eine besondere Note verleihen. Im Inneren überzeugt die Fläche mit großzügigen Räumen in unterschiedlichen Größen – ideal für Einzelbüros, Teamflächen oder Besprechungsbereiche. Hohe Decken, große Fenster und originaler Stuck sorgen für ein helles, repräsentatives Arbeitsumfeld.
Im Rahmen der aktuellen Modernisierung werden historische Details sorgfältig mit zeitgemäßem Komfort kombiniert: Die Sanitärbereiche werden komplett erneuert und der Parkettboden wird aufgearbeitet, um den ursprünglichen Charakter zu bewahren. Die Fläche präsentiert sich damit als modernisierte Büroeinheit mit besonderem architektonischem Flair.

Lage

  • zwischen Englischer Garten, Isar und Prinzregentenstraße
  • U-Bahn Lehel oder Tram-Station Paradiesstraße
  • in der beliebten Wohn- und Geschäftsgegend befinden sich einige Restaurants und Cafés im direkten Umfeld

Ausstattung

  • historisches Fischgrätparkett
  • Beleuchtung über Stehleuchten
  • CAT6-Verkabelung (muss eventuell auf Ihren Bedarf angepasst werden)
  • Glasfaseranschluss
  • Teeküchenanschlüsse
  • Personenlift
  • altbautypische Raumhöhe
  • außen liegender Sonnenschutz
  • Stuckdecke

Sonstiges

  • Ein Stellplatz steht im Innenhof (à € 120,00 zzgl. gesetzl. MwSt.) und ein Stellplatz steht in der Garage zur Verfügung (à € 200,00 zzgl. gesetzl. MwSt.)
  • E-Ladesäulen in wenigen Gehminuten in der Lerchenfeldstraße erreichbar
  • Archivfläche im Untergeschoss (à € 8,50/m² zzgl. gesetzl. MwSt.)
  • Flächenberechnung nach Netto-Grundfläche (NGF)
  • Gewerbesteuerhebesatz 490 %
  • die dargestellten Bilder zeigen Ausbaubeispiele aus dem Gebäude
  • Pflichtangaben zum Energieausweis nach §16a EnEV entfallen wegen des Denkmal- bzw. Ensembleschutzes
Merkliste

Gerne senden wir Ihnen Exposés Ihrer Favoriten per Email zu.

Sie haben noch keine Favoriten gespeichert.

Vielen Dank
Wir werden uns so schnell
wie möglich mit Ihnen
in Verbindung setzen.
Objekt: 11475
Exposé anfordern

* Pflichtfelder bitte vor Absenden ausfüllen.